Te koop Vrijstaande Villa Costa Del Sol Benajarafe € 625.000,-
Looking for peace, space, and quality of life near the sea? Look no further! We present to you this spectacular detached villa located in a luxurious area of Benajarafe, just 1.5 km from the beach, offering stunning open views that will make you feel like you’ve found your own private retreat.
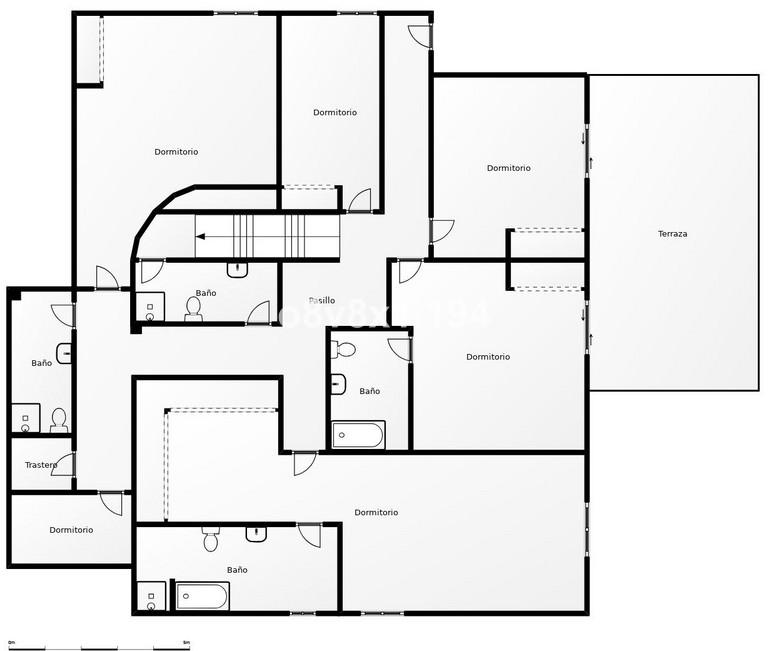
This property features 5 spacious bedrooms and 5 bathrooms, two of them en suite, making it perfect for large families, frequent guests, or even for use as a luxury rural home or high-end holiday rental.
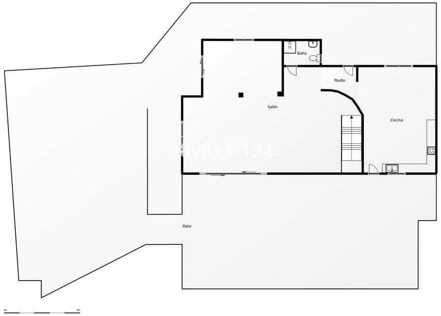
The fully equipped kitchen is ready to use and opens onto a large terrace — perfect for al fresco dining, entertaining friends, or simply relaxing in the sun. The home also boasts a private pool, ideal for cooling off on warm days without ever leaving the comfort of your own property.
At the entrance, you'll find a closed garage and additional outdoor space for parking several vehicles — offering both convenience and security.
The area is exceptionally peaceful, ideal for those looking to escape the hustle and bustle, yet still enjoy proximity to all essential services. Just a 4-minute drive brings you to schools, shops, bars, restaurants, and everything needed for daily living. And for frequent travelers, Málaga Airport is only 30 minutes away.
In short, this isn’t just a house — it’s a lifestyle upgrade. More space, more light, more freedom.
Ready for a change? Here it is. A home with soul, ready for you to enjoy to the fullest.
Please note: The sale price does not include furniture or decorative elements shown in the photos, except for fixed installations such as the kitchen and bathrooms.
In accordance with Article 10 of the Junta de Andalucía’s Royal Decree 218/2005 of October 11th, which regulates consumer information in property sales and rentals in Andalusia, we inform clients that the Informative Sheet for Second or Subsequent Transfers of Property is available.
The sale price does not include transaction costs (notary, registry fees, or I.T.P. tax).
There are no additional real estate agency fees beyond the sale price.
This property is marketed under a Multi-Exclusive system, which means that any transactions or arrangements related to the sale must be managed exclusively through our agency. We kindly request that you contact us directly and refrain from approaching the owners or current occupants.
meer info