Te koop Residential Plot Costa Del Sol Rincón De La Victoria € 363.000,-
Uitstekende investeringsmogelijkheid in vastgoed: PANORAMA BUILDING in La Cala del Moral
Wij bieden een unieke investeringsmogelijkheid in een nieuwbouwproject met een potentieel dubbele winstgevendheid.
gelegen in een van de meest gewilde kustgebieden van de Costa del Sol: La Cala del Moral, Rincón de la Victoria (Málaga).
Het project, genaamd 'EDIFICIO PANORAMA', heeft voorbereidende technische en stedenbouwkundige studies ondergaan om zowel residentieel als toeristisch gebruik mogelijk te maken.
1. Samenvatting van strategische investeringen Hoofdkenmerk Detail Bron Locatie La Cala del Moral, Rincón de la Victoria (Málaga).
Op slechts 320 meter van de Middellandse Zee, vlakbij de zee.
Mogelijkheid tot dubbel gebruik: bewoning of vakantieverblijf met twee sleutels (2**).
Perceel geconsolideerd stedelijk gebied aan Camino del Cementerio 19A. Topografische oppervlakte: 430,51 m².
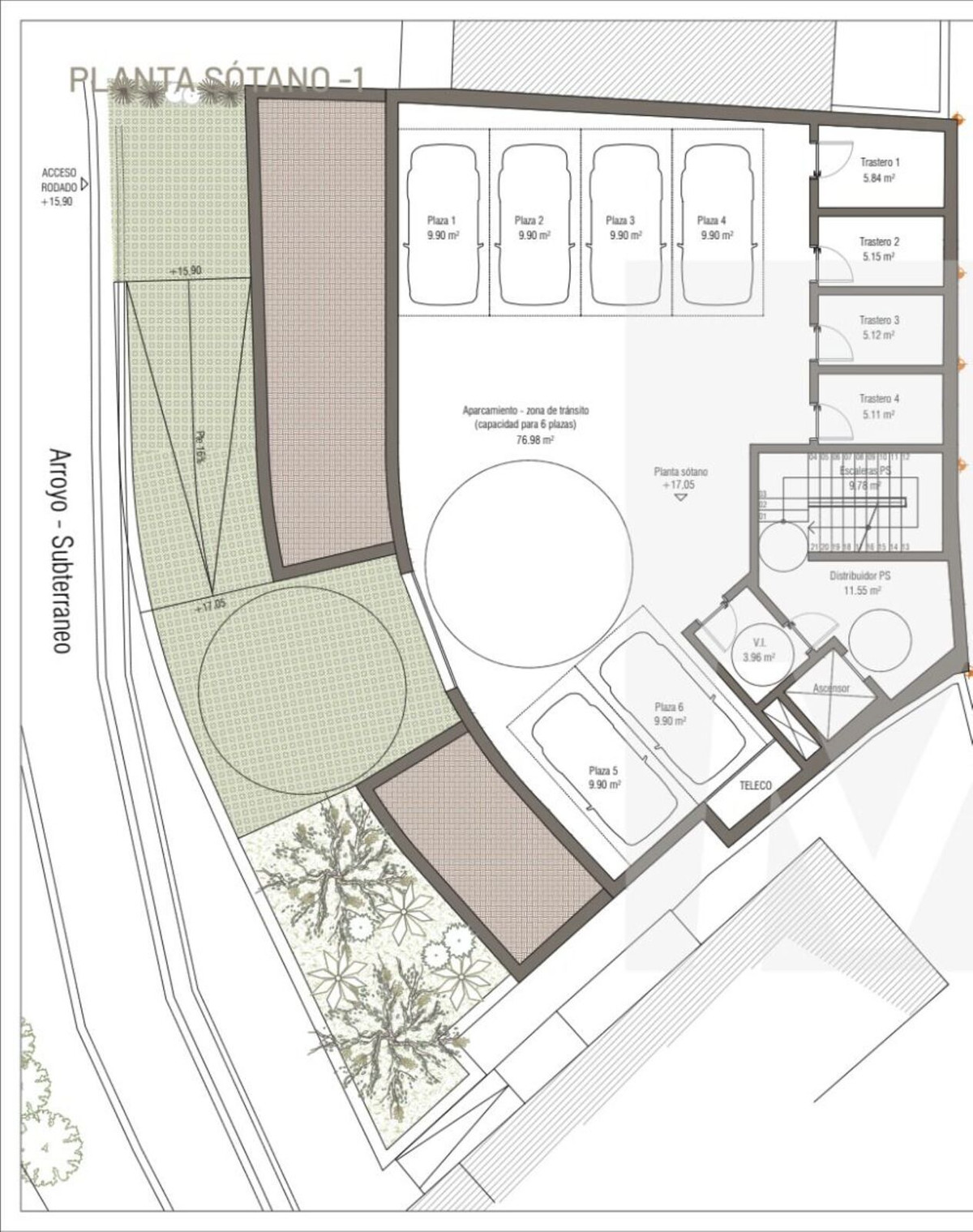
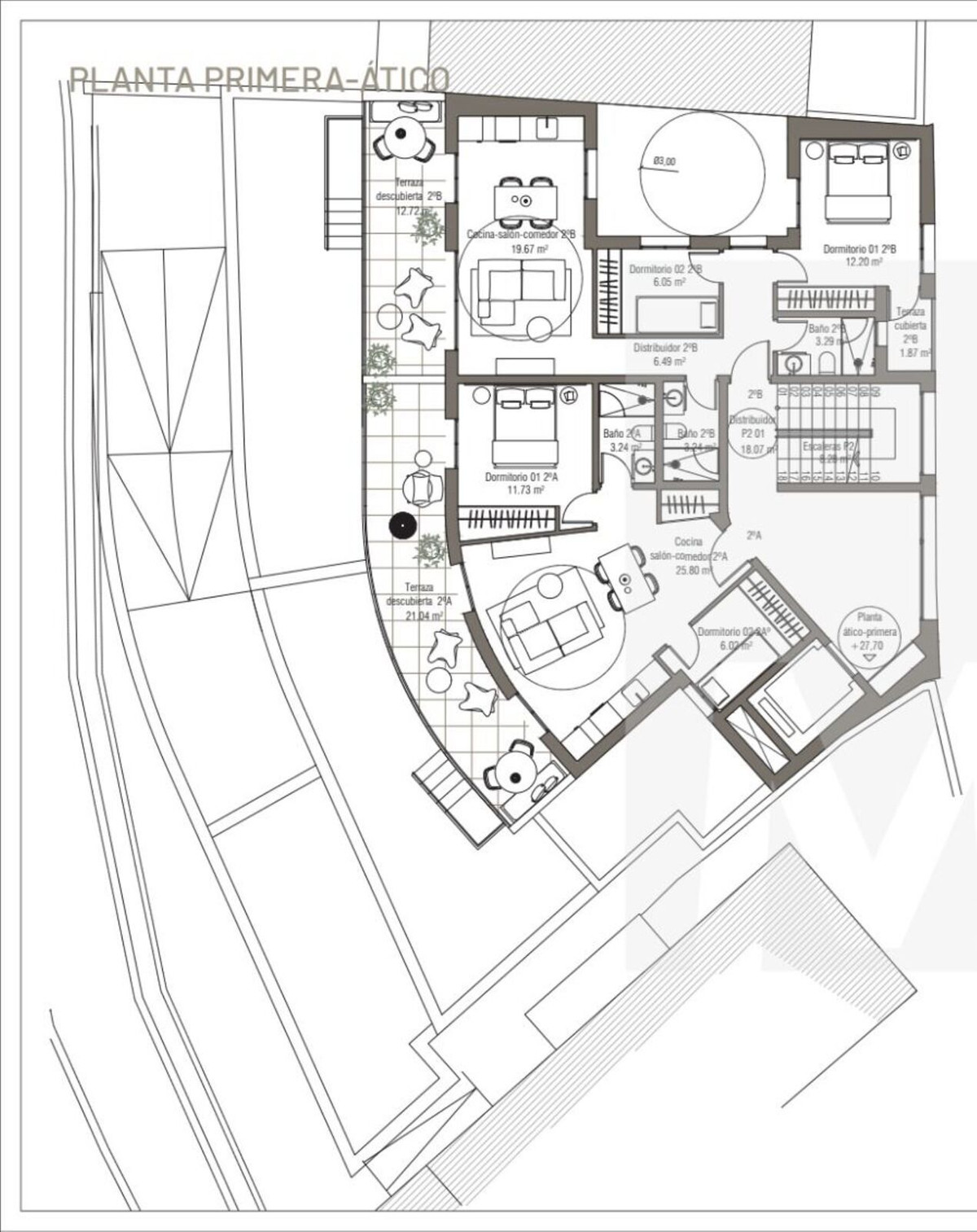
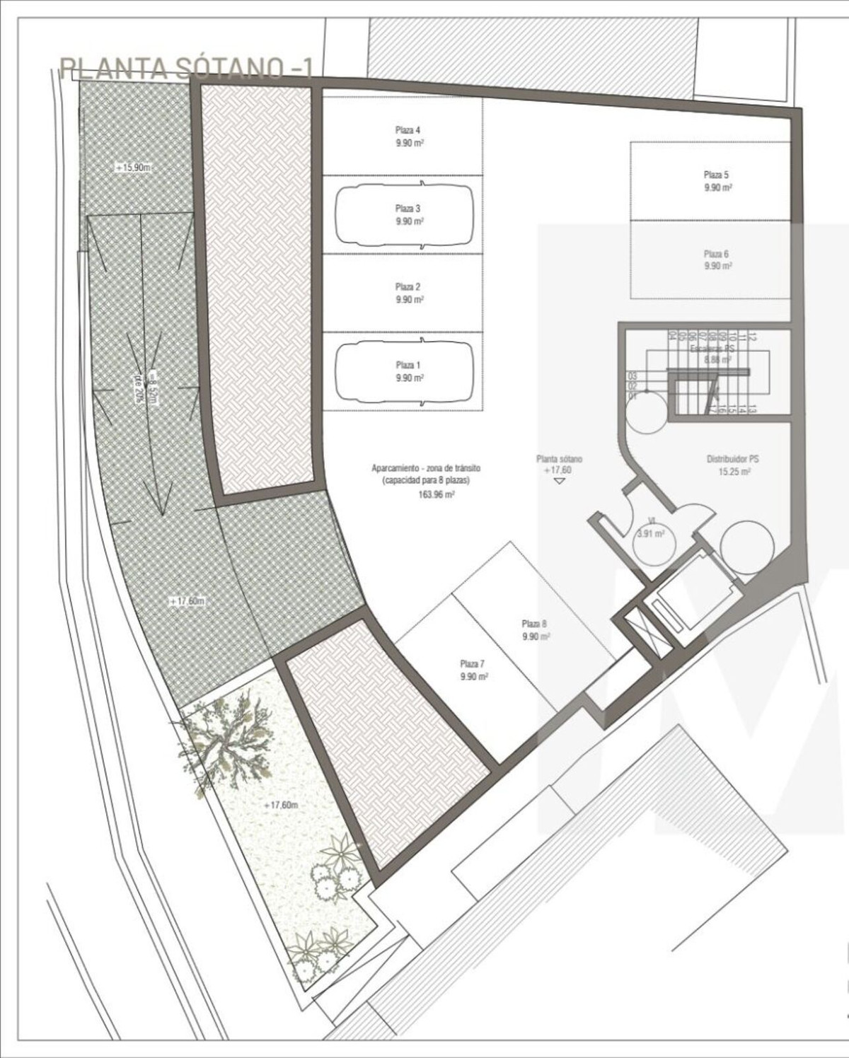
Ontwikkelingsmogelijkheid voor de bouw van vier verdiepingen boven de grond en een kelder (begane grond + 1 verdieping + penthouse).
Marktrendabiliteit: Zeer gewilde regio voor permanente woningen, tweede huizen en investeringen, met een hoge winstgevendheid bij vakantieverhuur.
De gemiddelde prijs per vierkante meter in La Cala del Moral bedraagt ongeveer €2.300/m².
2. Ontwikkelingsmogelijkheden voor het PANORAMA-GEBOUW Het voorlopige studiedossier beschouwt twee geoptimaliseerde scenario's voor het perceel.
het maximaliseren van het bouwpotentieel in overeenstemming met de lokale stedenbouwkundige voorschriften (Classificatie: Gesloten blok MC-1):
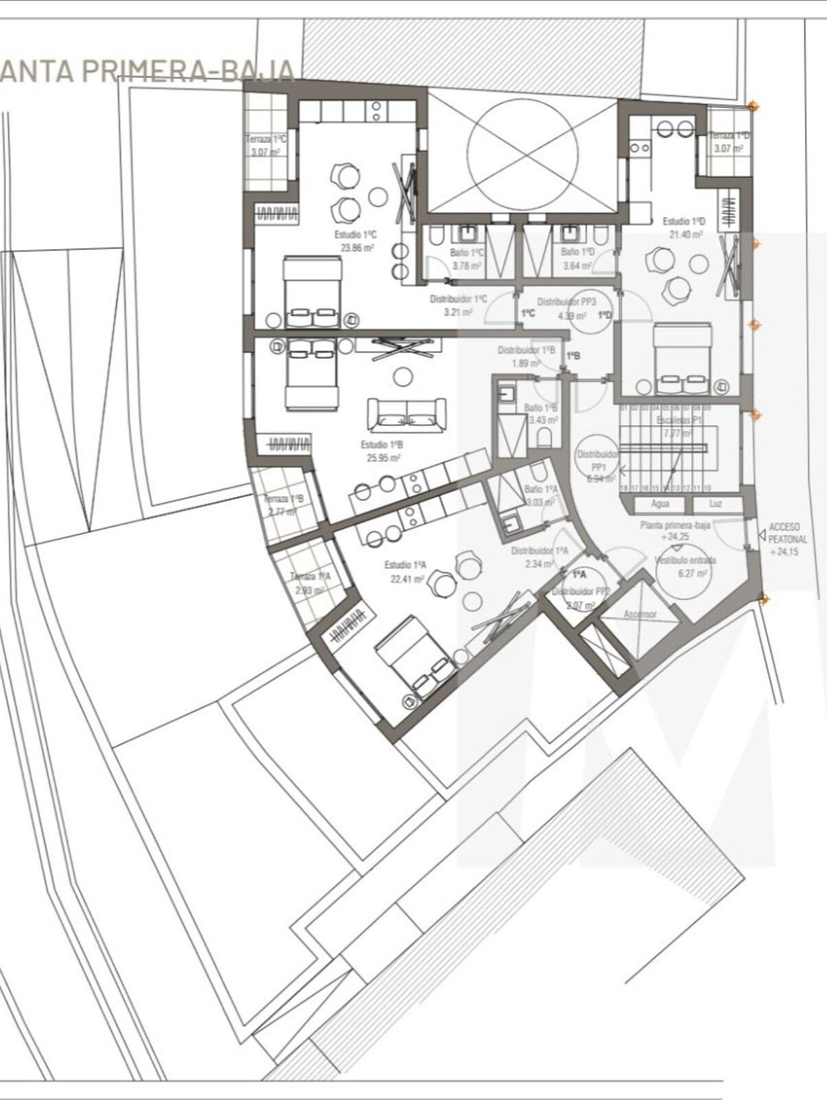
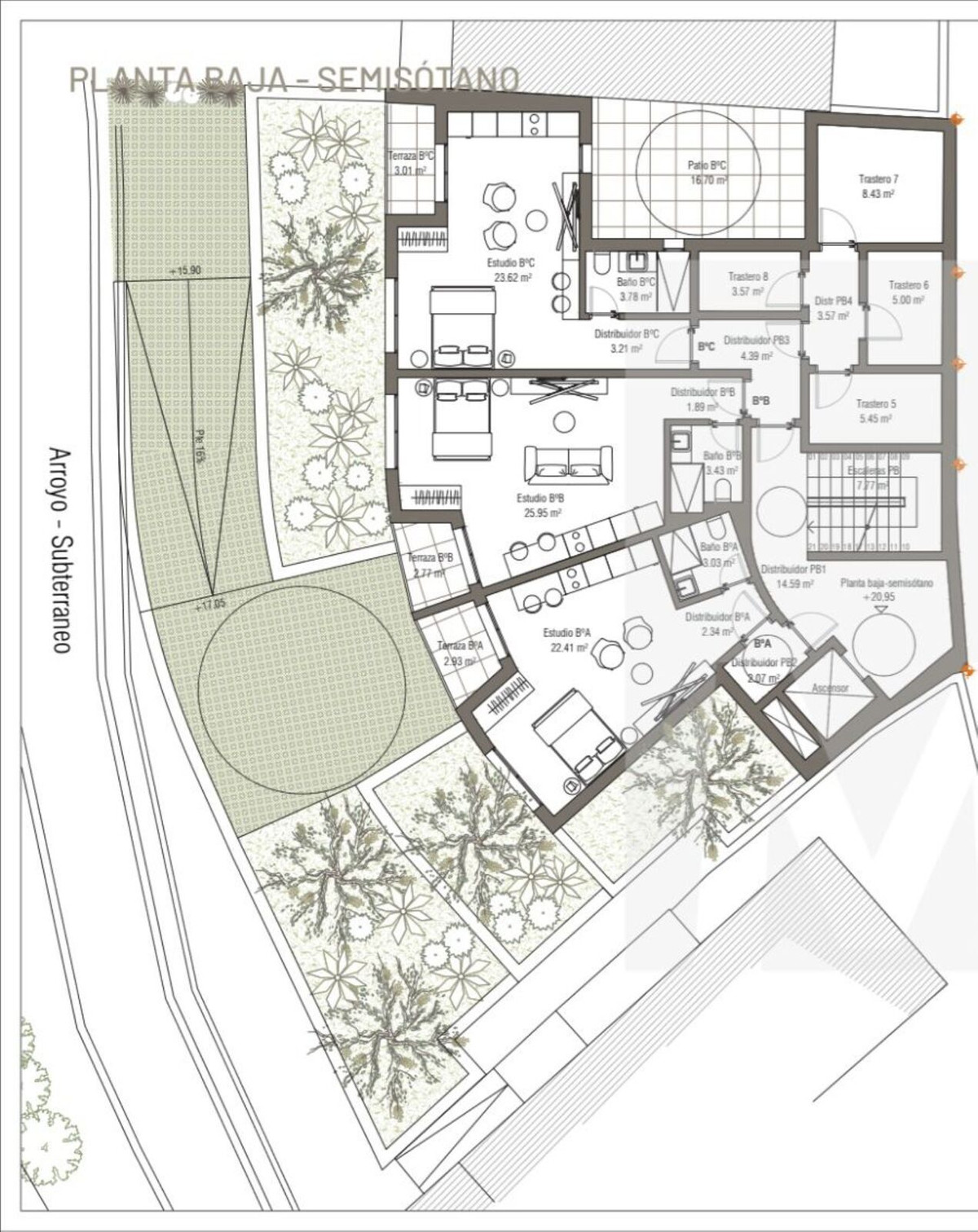
Optie A: Toeristisch regime (2 sterren) Deze optie is ontworpen om te profiteren van de grote toeristische vraag aan de Costa del Sol.
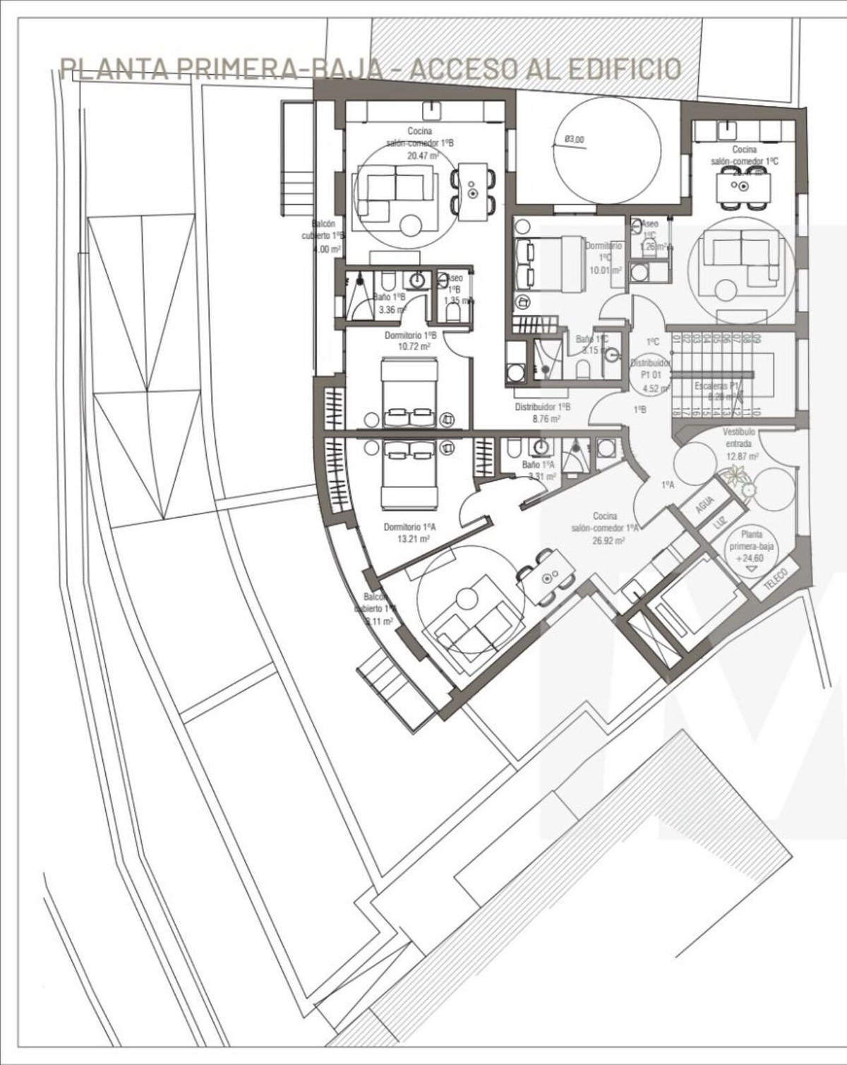
Voorgestelde indeling: 10 studio's en 1 appartement.
Totale bebouwde oppervlakte: 959,15 m².
Voordeel: Maakt een snel rendement op de investering mogelijk via vakantieverhuur, een zeer winstgevende sector in de regio.
Optie B: Residentieel regime gericht op de verkoop van luxe appartementen of langetermijnverhuur.
Voorgestelde indeling: Meerdere woningen (appartementen) [gebaseerd op studioplattegronden].
Totale bebouwde oppervlakte: 932,26 m².
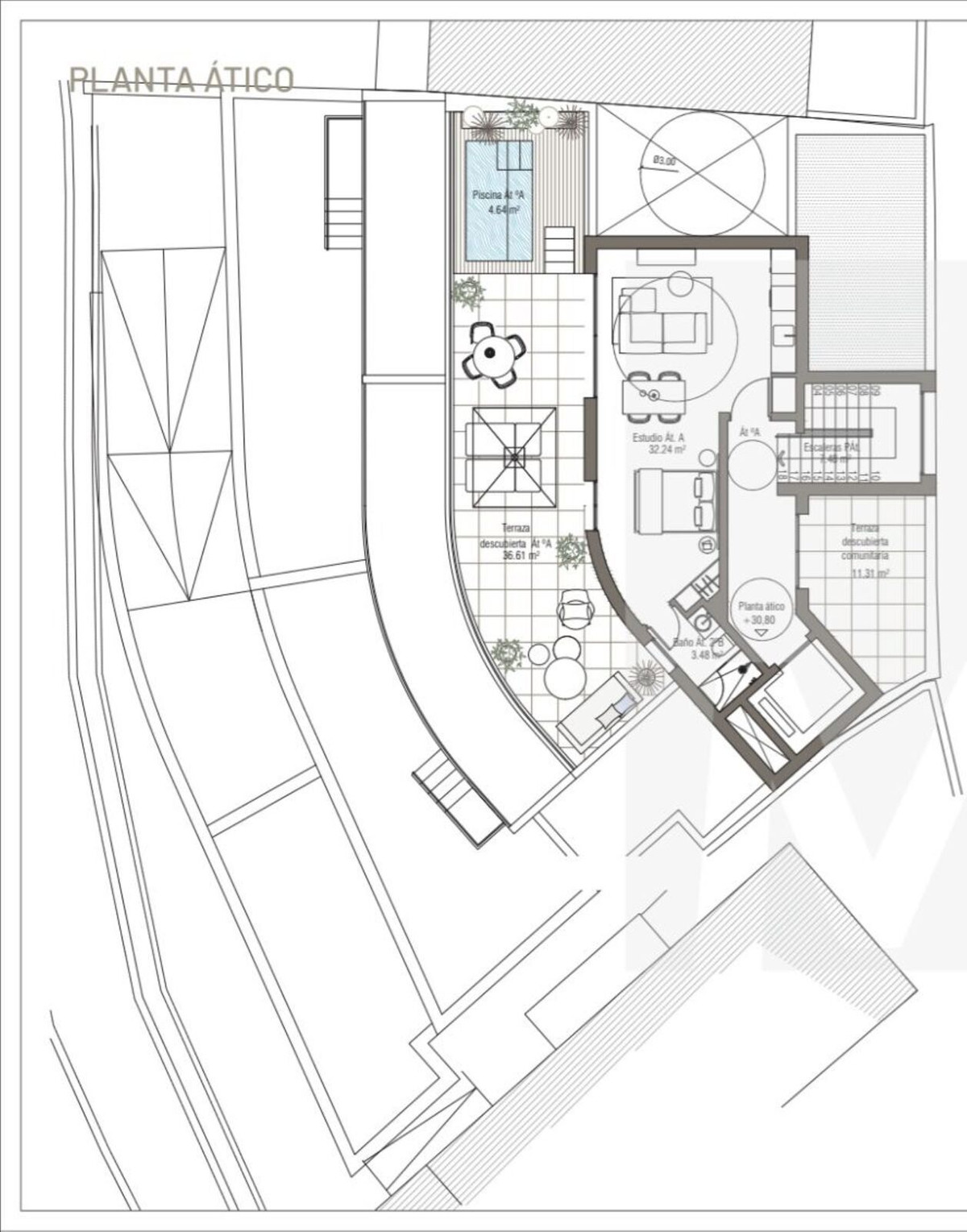
Premium kenmerken: De voorlopige woonstudie omvat de mogelijkheid om appartementen te ontwerpen met terrassen en een zwembad op de penthouseverdieping.
een belangrijk kenmerk in de luxemarkt van de regio.
3. Conclusie en contact Het PANORAMA BUILDING vertegenwoordigt een investering met een laag risico in geconsolideerde stedelijke grond.
met een strategische locatie op 320 meter van de zee en de flexibiliteit om het project te ontwikkelen in de meest winstgevende vorm, afhankelijk van de marktontwikkelingen.
Hieronder vindt u plattegronden, technische details, stedenbouwkundige parameters en een studie van de oppervlakten voor elk regime (residentieel en toeristisch).
Neem gerust contact met ons op om een afspraak te maken.
meer info